

撕裂强度指撕裂薄型试样所需的力,它是在测定薄膜或薄片耐撕裂性的一个试验方法中定义的一个术语。
检测产品
PVA涂布高阻隔薄膜、双向拉伸聚丙烯薄膜(BOPP薄膜)、低密度聚乙烯薄膜(LDPE薄膜)、聚酯薄膜(PET薄膜)、尼龙薄膜(PA薄膜)、流延聚丙烯薄膜(CPP薄膜)、聚乙烯薄膜(PE薄膜)、聚苯乙烯薄膜(PS薄膜)、聚丙烯薄膜(PPE薄膜)、镀铝薄膜、保鲜膜等。
检测方法
①片材,薄膜撕裂 | ②橡胶撕裂 |
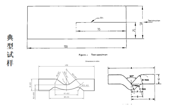
裤型(ISO 6383-1);直角形(ASTM D1004) 卡莱门多夫(ASTM D1922;ISO 6383-2;GB/T 16578.2) | (ASTM D624;ISO 34-1;GB/T 529) 直角,裤型,新月形 |

埃(卡)莱门多夫撕裂法,砝码:200g;400g;800g;1600g;3200g;6400g




